0
Skip to Content
About
Services
Portfolio
Active Projects
Testimonials
News
Contact
Contact Me
Open Menu
Close Menu
About
Services
Portfolio
Active Projects
Testimonials
News
Contact
Contact Me
Open Menu
Close Menu
About
Services
Portfolio
Active Projects
Testimonials
News
Contact
Contact Me
Previous
Previous
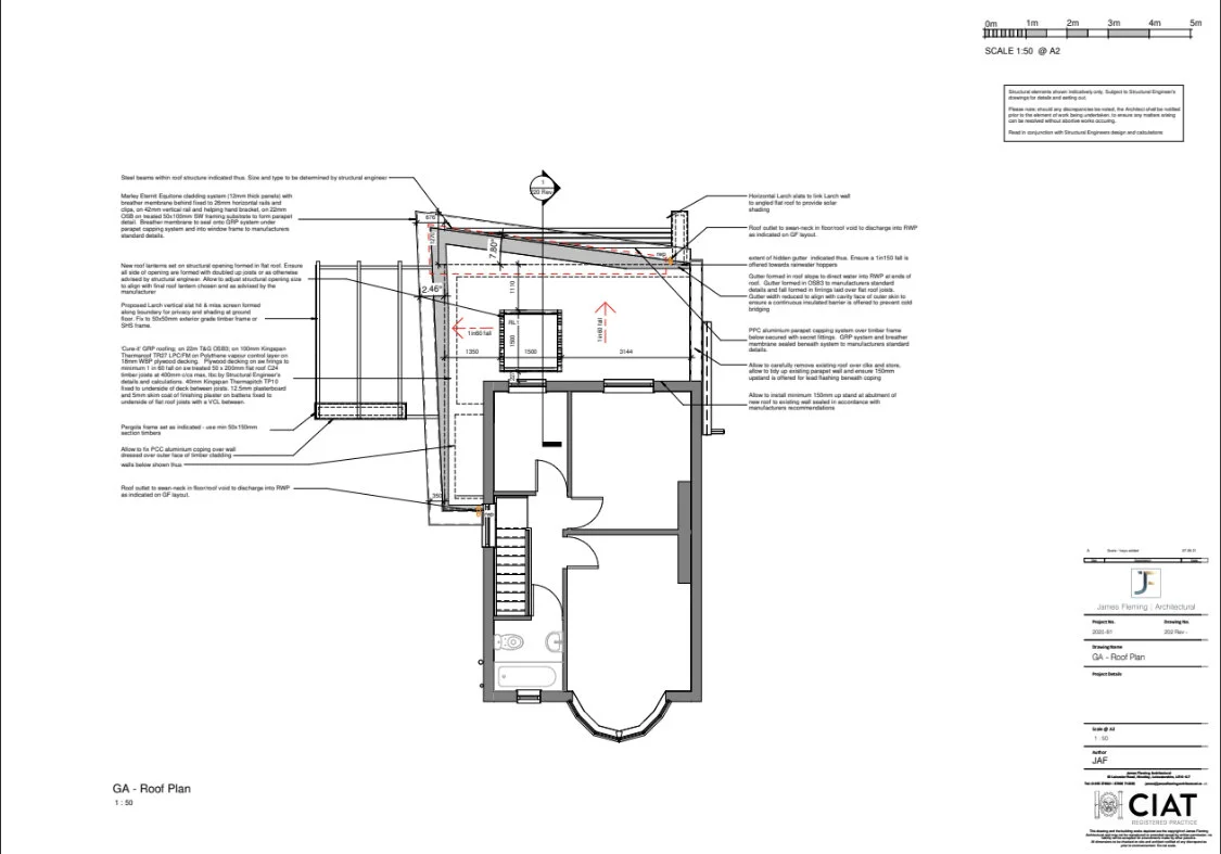
Burbage - Loft conversion
Next
Next
Technical drawings for contemporary Extensions and Alterations - Harbourne