0
Skip to Content
About
Services
Portfolio
Active Projects
Testimonials
News
Contact
Contact Me
Open Menu
Close Menu
About
Services
Portfolio
Active Projects
Testimonials
News
Contact
Contact Me
Open Menu
Close Menu
About
Services
Portfolio
Active Projects
Testimonials
News
Contact
Contact Me
Previous
Previous
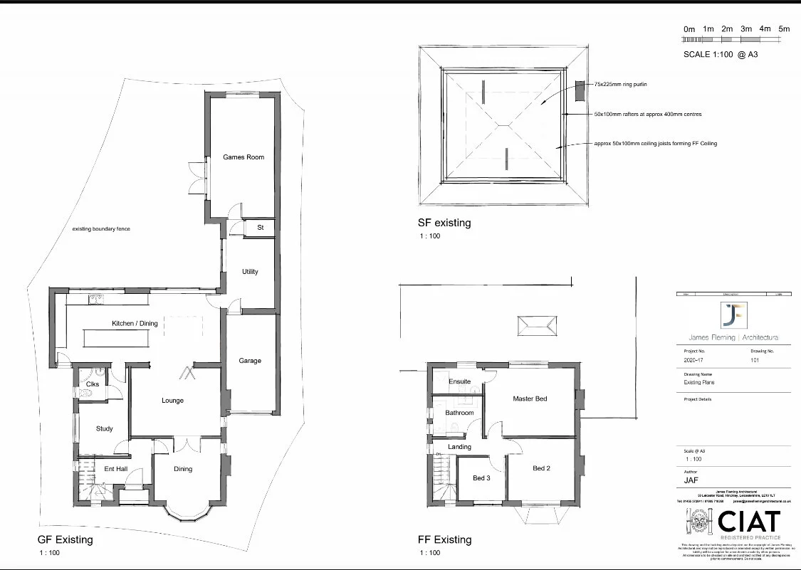
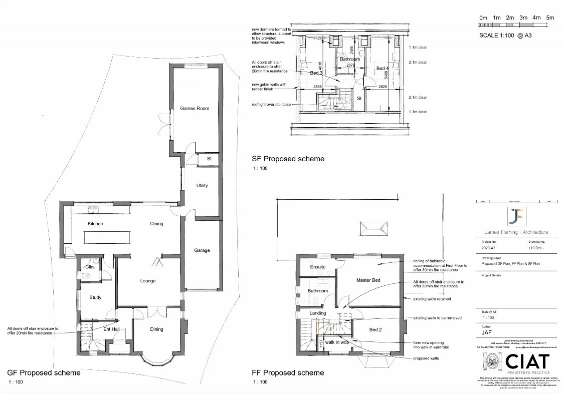
Rear Extension to dwelling - Leicester
Next
Next
Proposed Extensions and Alterations - Hinckley