0
Skip to Content
About
Services
Portfolio
Active Projects
Testimonials
News
Contact
Contact Me
Open Menu
Close Menu
About
Services
Portfolio
Active Projects
Testimonials
News
Contact
Contact Me
Open Menu
Close Menu
About
Services
Portfolio
Active Projects
Testimonials
News
Contact
Contact Me
Previous
Previous
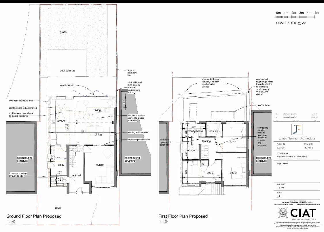
Contemporary Extensions and Alterations-Hinckley
Next
Next
Material change of use to Residential units